公開日 2017年12月08日
地域おこし協力隊 〜富士ケ丘Favoratory(フジガオカ・ファボラトリー)〜
富士ケ丘から自然や文化など、土地の”FAVORITE(お気に入り)”を見つけて、そこから作品を作り、発信していく"LABORATORY(実験室)”という思いを込めて、地域おこし協力隊と、協力隊とともに地域を盛り上げてくれる人々のチームを「富士ケ丘Favoratory」(フジガオカ・ファボラトリー)と名付けました。あなたも、協力隊とともに地域を盛り上げるファボラー(メンバー)になってみませんか?
vol.31 揚枝方の空き家改修が着々と進んでいます!
地域おこし協力隊アーティスト枠の石渡さんと奥様ちふみさんの空き家改修の勢いが止まりません!
<改修の対象となる空き家>

住所:北茨城市関本町富士ケ丘2517
電話:0293-24-5231
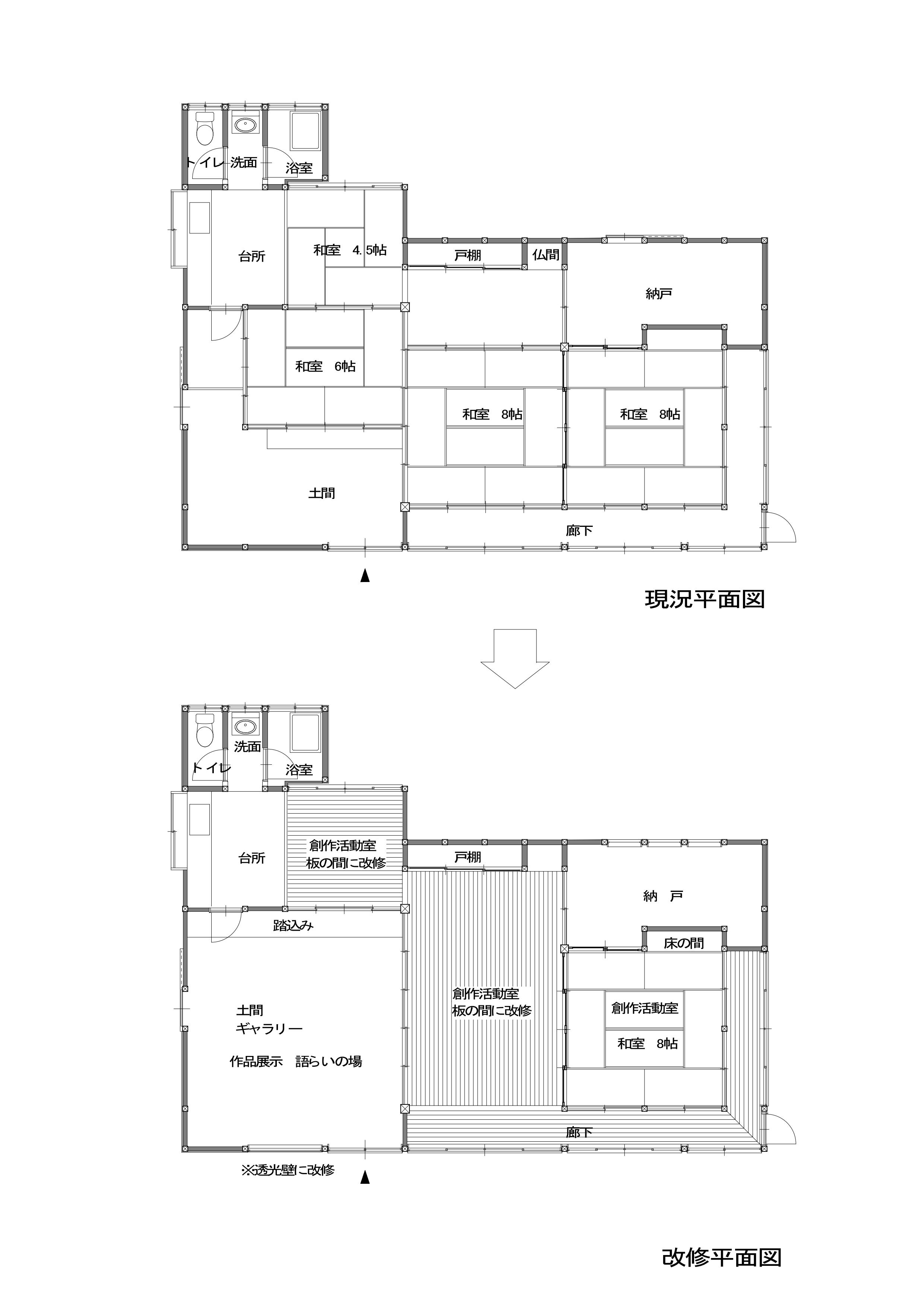
↓改修は、このようなイメージで行います。

着々と改修が進み、あっという間に玄関を入ってすぐの土間部分の天井が外れました。
元々は、左の写真のとおり天井がありましたが、それを外し、右の写真のとおり梁と屋根裏が見えるようになりました。
屋根裏は、石渡夫妻の努力の結晶!葦簾と竹で元の茅葺の茅がきれいに覆われています。
梁が露出し、天井が高くなったことで、古民家らしい雰囲気になってきました☆
そして、助っ人の力も借りながら、懸命に剥がしていた和室の床も、徐々に徐々に作業が進み…

撤去完了!

これで、後付で設置された和室がなくなり、元々の広い土間が再現されました。
(「再現」というには、もう少し整地が必要ですね。)
右の写真は、床を解体中に取り外された囲炉裏の枠組みです。
石渡夫妻は、これを使って囲炉裏を再現するのでしょうか!?楽しみです♪
台所も、改修と清掃が進み、こんなにピカピカに☆
そして、取り外したシンクと、元々あった棚を活用して、お手製の流し台を作成。

見事な再利用です!
母屋の改修ばかりでなく、農小屋や物置、庭の改修・解体も進んでいます。

左が元の農小屋。石渡夫妻が作業場として活用していますが、ドアがありませんでした。
この度、ドアを設置!これで、寒さを凌いで作業することができます♪
改修・再利用が難しい建物は解体。解体して出た廃材を使って、別の建物の改修に利用します。
右の写真は、元の馬小屋です。こちらの建物は、残してギャラリーとするため、今後改修を行います。
どんな姿に生まれ変わるのか、乞うご期待です!
手付かずとなり、草が生い茂っていた庭の一部は、砕石を敷いて駐車場として整備します。
そこから母屋へ至る道ができました。
農小屋の脇も草木が生い茂っていましたが、それを刈り払ってみると、なんと!巨大な石が出現!
近所の方に聞くと、昔、皆で運んできたのだとのことですが、どうやって?何のために?謎です…。

こちらのお宅の元の持ち主は有賀さん。
そのため、石渡夫妻は、「有賀邸」と「ありがてえ(有難い)」をかけて、この古民家の名前を「ARIGATEE」と名付けました。
関わる皆さんすべてが「ありがとう」という気持ちになる家を目指しているとのことです。
素敵な名前ですね♪
3月には、地域おこし協力隊の企画による北茨城版芸術祭が企画されています。
石渡さんは、その芸術祭において「ARIGATEE」を公開することを目標に作業に励まれています!
応援、よろしくお願いします☆
お近くにお越しの際は、ぜひ改修の様子をご覧にお立ち寄りください♪
※常に上記活動場所にいる訳ではありませんので、訪問される際は事前にお電話にて在否をご確認ください。
(電話番号:0293-24-5231)
今後も改修の様子を随時アップしてまいります!
石渡さんのツイッターでも改修の様子が呟かれています。ぜひご覧ください☆
Twitter:NORIOISHIWATA

