公開日 2017年11月20日
地域おこし協力隊 〜富士ケ丘Favoratory(フジガオカ・ファボラトリー)〜
富士ケ丘から自然や文化など、土地の”FAVORITE(お気に入り)”を見つけて、そこから作品を作り、発信していく"LABORATORY(実験室)”という思いを込めて、地域おこし協力隊と、協力隊とともに地域を盛り上げてくれる人々のチームを「富士ケ丘Favoratory」(フジガオカ・ファボラトリー)と名付けました。あなたも、協力隊とともに地域を盛り上げるファボラー(メンバー)になってみませんか?
vol.25 揚枝方空き家改修プロジェクト続報!
地域おこし協力隊アーティスト枠の石渡さんが進める空き家プロジェクトが着々と進んでいます!
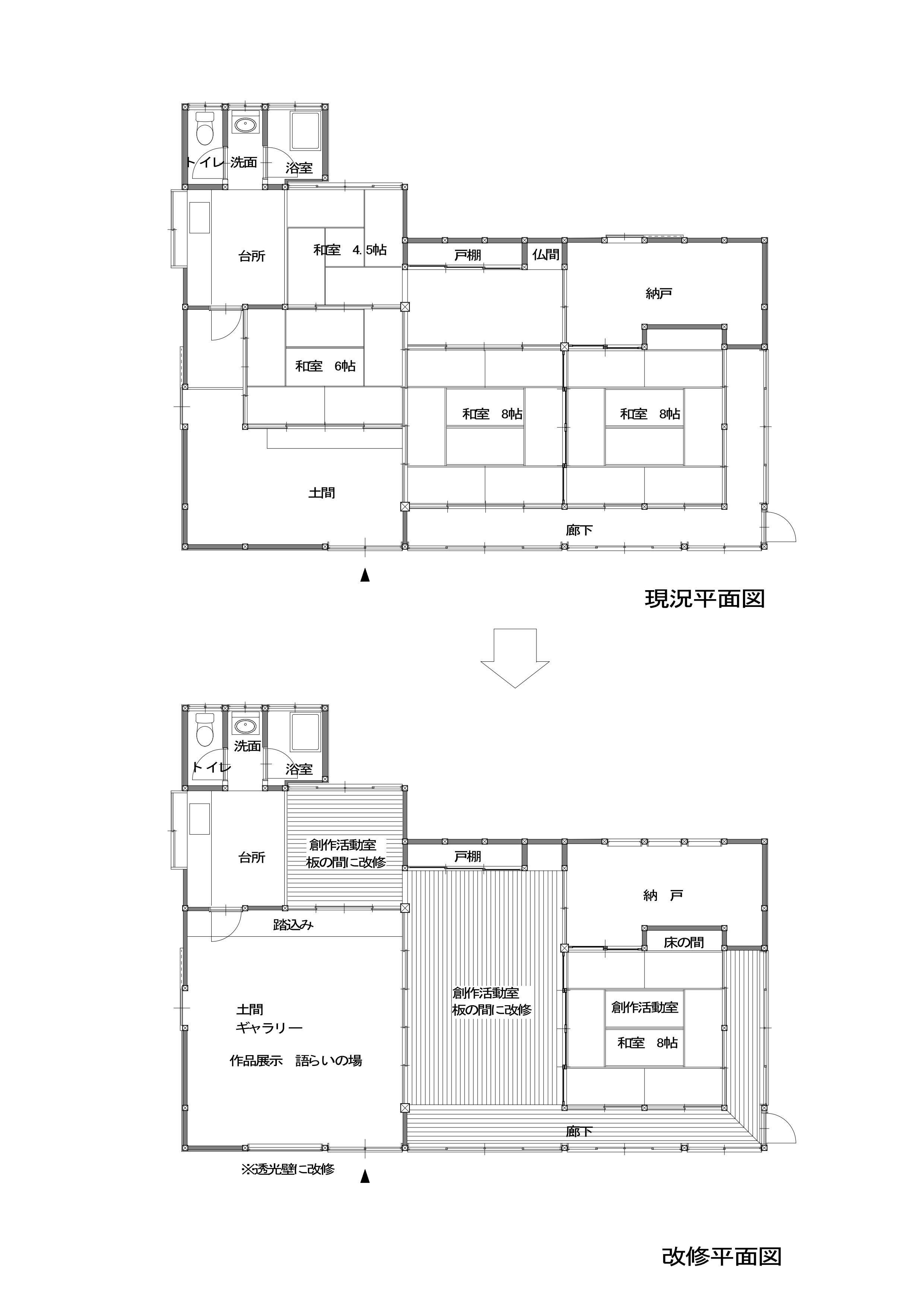
<改修の対象となる空き家>

住所:北茨城市関本町富士ケ丘2517
電話:0293-24-5231
↓改修は、このようなイメージで行います。

土間に後付で設置された和室を解体し、元々の広い土間を再現します。

左が、その和室です。右は、茅葺屋根の開口部。
こちらの家屋は、元々は茅葺き屋根でしたが、現在は外部をトタンで覆い、内部も左の写真のとおり天井が付いています。
石渡夫妻は、古民家らしく梁を出したいとのことで、解体する和室も含めた土間部分の天井を外すことに。
しかし、そのまま天井を外すと、傷んだ茅がどんどん落ちてきてしまいます。
そこで、石渡夫妻は、次のような方法で屋根裏を改修することに!

左は、茅葺きの紐。まずは、紐を結び直すところから作業開始です。その後、茅葺屋根の裏側をシートでカバー(写真右)。

シートでカバーした上に葦簾を付けるため、葦簾に防腐兼色付け作業(写真左)。 写真右のような形で葦簾を付けていきます。
そして完成!

傷んだ茅葺きが露出していた屋根裏が、こんなにきれいになりました!
この後、この屋根の下の天井を外せば、玄関から入るとすぐこの屋根裏が見えるようになります!お楽しみに☆
お近くにお越しの際は、ぜひ改修の様子をご覧にお立ち寄りください♪
※常に上記活動場所にいる訳ではありませんので、訪問される際は事前にお電話にて在否をご確認ください。
(電話番号:0293-24-5231)
今後も改修の様子を随時アップしてまいります!
石渡さんのツイッターでも改修の様子が呟かれています。ぜひご覧ください☆
Twitter:NORIOISHIWATA

